Montažna hiša
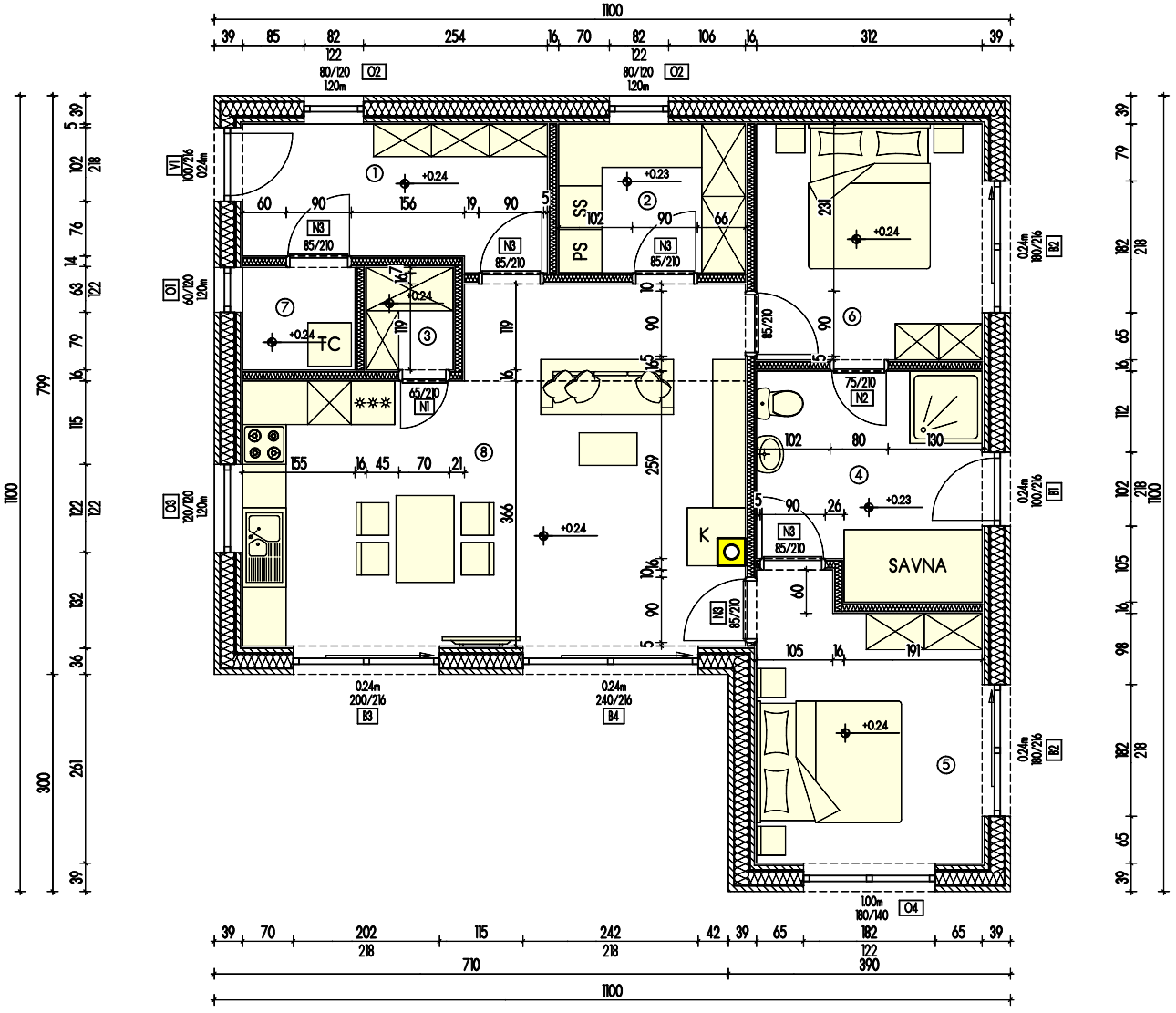
Gre za hišo z dvokapno streho. Hiša ima pritličje z uporabno površino približno 80 m² in vključuje dnevni prostor, dve spalnici, kopalnico, kuhinjo, shrambe in tehnični prostor. Objekt je lesene montažne konstrukcije s toplotno izolacijo iz vpihanih lesenih vlaken, podprto z vlaknenimi lesenimi ploščami na notranji in zunanji strani. Temelji na betonski plošči, kritina je iz glinenih strešnikov. Pridruženi sta garaža in drvarnica. Nadstrešnice (terase) imajo skupno površino približno 25 m². Hiša je opremljena s toplotno črpalko za ogrevanje, talnim ogrevanjem, lastno čistilno napravo.
